Quadrilocale in vendita

Formia, Via Rotabile - Rio Fresco - Ospedale
€ 270.000
4 locali 4 locali
126 Mq 126 Mq
1 bagno 1 bagno

Quadrilocale in vendita

Formia, Via Rotabile - Rio Fresco - Ospedale

Descrizione annuncio

Per garantirti una visione completa di questo immobile, offriamo la possibilità di esplorarlo tramite un virtual tour, per permetterti di valutarlo comodamente da casa. e subito questa soluzione ovunque ti trovi!

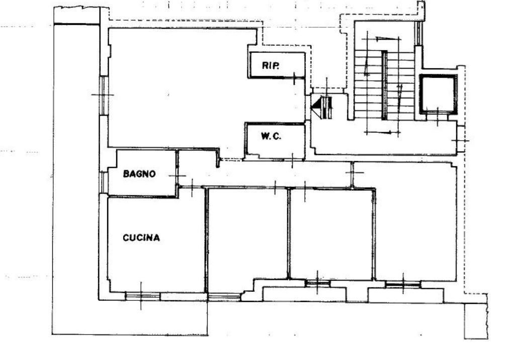
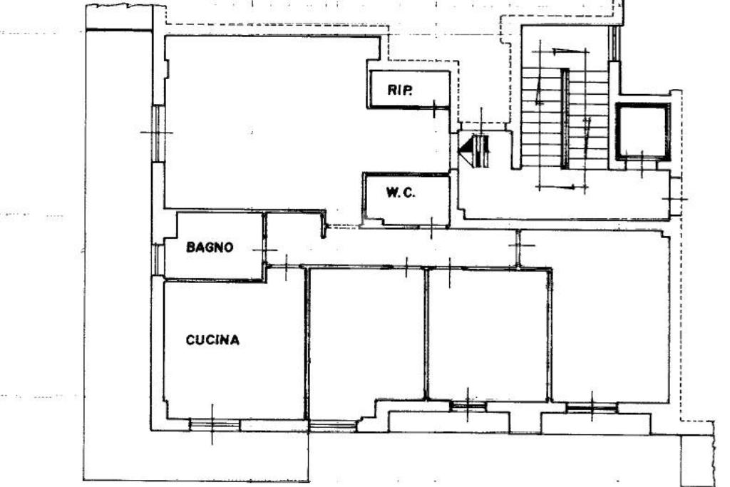
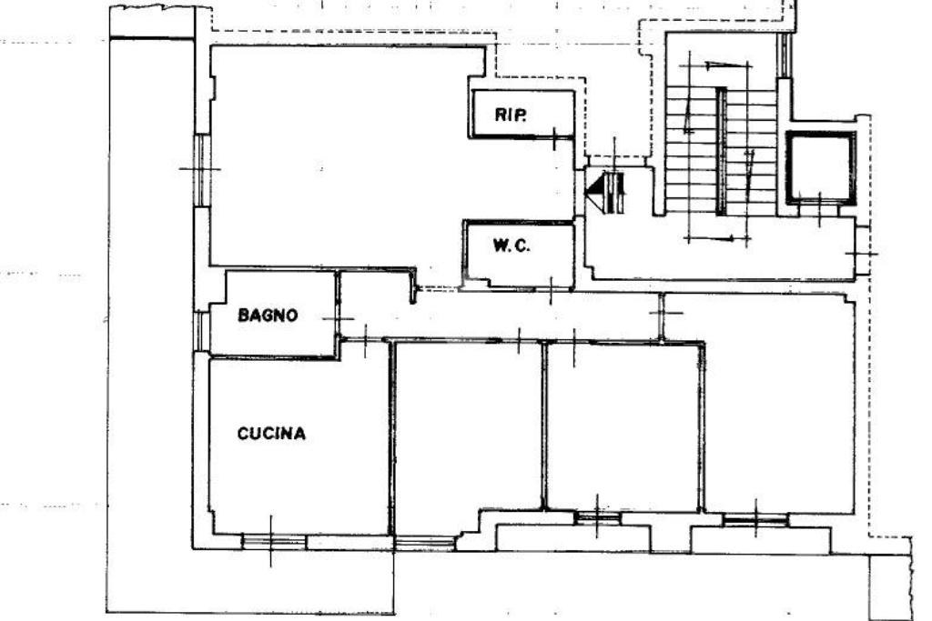
Formia Via Rotabile, Proponiamo in vendita un appartamento posto al terzo piano con ascensore, situato all'interno di un contesto residenziale tranquillo e ben servito. L'immobile si distingue per l'ampia metratura interna, la presenza di un balcone abitabile vista mare, balconi privati in due camere da letto e comode pertinenze come box auto e posto auto in area condominiale.

L'appartamento ha una superficie interna calpestabile di 110 mq. L'ingresso si apre su un luminoso soggiorno con accesso diretto al balcone abitabile vista mare di circa 30 mq. La cucina è abitabile, anch'essa con uscita sul terrazzo. La zona notte è composta da tre camere da letto, di cui due con balconi privati, due bagni (uno patronale e uno di servizio) e un pratico ripostiglio.

La costruzione risale agli anni '90 e si presenta in buone condizioni generali. Il box auto di proprietà e il posto auto all'interno dell'area condominiale rappresentano un importante valore aggiunto in zona.

DISTANZE PRINCIPALI

Mare: 1,4 km

Porto di Formia: 2,8 km

Stazione ferroviaria di Formia-Gaeta: 3,4 km

Centro città: 1,5 km

Supermercati e servizi: entro 150 metri

Non perdere l'occasione di scoprirlo da casa: contattaci per accedere al virtual tour e fissare un appuntamento!

Mostra tutto

Nelle vicinanze

Trasporto pubblico Trasporto pubblico
Formia-Gaeta
Formia-Gaeta
1,7 Km
Trasporto pubblico
1,3 Km
Formia
1,6 Km
Ricariche auto elettriche Ricariche auto elettriche
Formia De Gasperi | EnelX
240 m
Largo Paone
1,5 Km
Molo Amerigo Vespucci
2,0 Km
Scuole Scuole
Scuola media statale vitruvio pollione
1,1 Km
Scuole
1,9 Km
Istituto Magistrale
2,4 Km
Farmacia Farmacia
Farmacia S. Anna
1,4 Km
Farmacia
1,7 Km
Ospedali Ospedali
Dono Svizzero
730 m
Pronto Soccorso Ospedale Dono Svizzero
790 m
Supermercati Supermercati
Supermercati
1,2 Km
IN's
1,4 Km
Conad
2,3 Km
Negozi Negozi
Merolla Calzature
1,1 Km
Vittoria
1,2 Km
Panificio D'Urso
1,2 Km
Cristiano intimo
1,3 Km
Negozi
1,3 Km
Bar Bar
La Vinicola Vino
1,0 Km
Green Cafe
1,2 Km
Pizzeria S. Giovanni
1,3 Km
Bar
1,3 Km
La Perla
1,4 Km
Ristoranti Ristoranti
Taverna di Mola
1,1 Km
Il Tartufo
1,1 Km
Tosti Panini Gourmet
1,2 Km
Il Magazzino
1,2 Km
Pizzeria San Giovanni
1,3 Km
Mostra tutto

Caratteristiche

Rif.:
61082101
Piano:
3 di 3 con ascensore (Piano medio)
Box:
1
Posti auto:
1
Balconi:
1
Terrazzi:
1
Mostra tutto
Prezzo Prezzo
€ 270.000
Rata mutuo Rata mutuo
€ 1.273 / mese
Spese annue Spese annue
€ 480
Proponi il tuo prezzoProponi il tuo prezzo

Classe Energetica

F
F
F
F
F
F
F
F
F
EP globale non rinnovabile:
237.00 kW h/m² anno
EP globale rinnovabile:
23.00 kW h/m² anno
EP invernale del fabbricato:
EP estiva del fabbricato:
Anno di costruzione:
1990
Riscaldamento:
Autonomo
Tipo impianto:
A radiatori
Tipo alimentazione:
Metano

Ti interessa visionare l'immobile?

Fissa un appuntamento  Fissa un appuntamento

Richiedi informazioni

Clicca su Leggi per aprire l'informativa
* Questi campi sono obbligatori

Calcola il tuo mutuo

Semplice e senza impegno
Anticipo

( % )
Mutuo

( % )

pochi semplici passi

inserisci i tuoi dati
Questionario completato
Grazie per aver richiesto un appuntamento senza impegno con un nostro Consulente del Credito e Assicurativo.

Hai inserito correttamente tutti i dati necessari e a breve riceverai una e-mail con un link da convalidare per inviare i tuoi dati.
Affiliato
Aurea Formia Srl
Via XXIV Maggio, 26 04023 Formia (LT)

Il nostro staff


  • Ludovica Capodiferro
    Coordinatrice

  • Daniele Maneggio
    Responsabile

  • Elisabetta Marconi
    Coordinatrice

  • Mario Mezzanino
    Responsabile

  • Umberto Aprea
    Collaboratore

  • Giacomo Evangelista
    Collaboratore

  • Antonio Rotondo
    Affiliato
Via XXIV Maggio, 26 04023 Formia (LT)
Zona: Formia
Mostra su mappa
Orari: Orari: lunedì - venerdì 9:00/13:00 - 15:00/19:30; sabato 9:00/17:00; domenica su appuntamento 9:30/13:00
Affiliato
Aurea Formia Srl
Via XXIV Maggio, 26 04023 Formia (LT)

2025 Tecnocasa Franchising S.p.A. - P. IVA 08365160152 - Via Monte Bianco 60/A 20089 Rozzano (MI). Ogni agenzia ha un proprio titolare ed è autonoma. Privacy policy | Policy utilizzo | Cookie policy