Trilocale in vendita

Formia, Via gradoni del duomo - Formia Centro
€ 168.000
Prezzo aggiornato
3 locali 3 locali
92 Mq 92 Mq
2 bagni 2 bagni

Trilocale in vendita

Formia, Via gradoni del duomo - Formia Centro

Descrizione annuncio

Per garantirti che la visita a questo immobile sia mirata alle tue esigenze specifiche, ti offriamo l'opportunità di visionarlo virtualmente tramite un virtual tour. Non perdere l'opportunità di visionare subito questa soluzione ovunque ti trovi!

Formia – Via Gradoni del Duomo

proponiamo in vendita appartamento con corte esterna privata, cantina di proprità e possibilità di parcheggio in area condominiale.

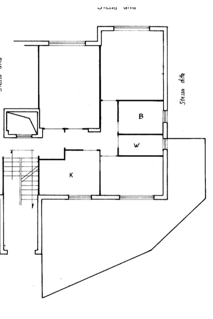
L’immobile è composto da ingresso nel disimpegno, soggiorno, cucina abitabile con accesso diretto alla corte esterna, ideale per pranzi e momenti di relax all’aperto.
La zona notte include una camera matrimoniale, una camera singola anch’essa con uscita sulla corte e due bagni di cui uno con vasca.

A completare la proprietà una cantina di pertinenza e la possibilità di parcheggio in area condominiale.

Grazie alla posizione centrale e alla presenza di spazi esterni, l’abitazione si presta sia come residenza principale, sia come casa vacanza o soluzione ad uso investimento.

DISTANZE:
Corso principale 300mt
Stazione ferroviaria 700 mt
Spiaggia di Vindicio 900 mt

Per informazioni o per organizzare una visita, contattaci.

Mostra tutto

Nelle vicinanze

Trasporto pubblico Trasporto pubblico
Formia-Gaeta
Formia-Gaeta
660 m
Trasporto pubblico
1,1 Km
Formia
950 m
Ricariche auto elettriche Ricariche auto elettriche
Molo Amerigo Vespucci
720 m
Largo Paone
930 m
Formia De Gasperi | EnelX
2,4 Km
Scuole Scuole
Istituto Magistrale
160 m
Scuole
550 m
Scuola media statale vitruvio pollione
1,3 Km
Farmacia Farmacia
Farmacia
770 m
Farmacia S. Anna
970 m
Ospedali Ospedali
Casa del Sole
920 m
Pronto Soccorso Ospedale Dono Svizzero
1,6 Km
Dono Svizzero
1,7 Km
Supermercati Supermercati
Conad
290 m
Supermercati
1,1 Km
Negozi Negozi
Negozi
1,1 Km
Merolla Calzature
2,9 Km
Bar Bar
Bar
510 m
Lo Smeraldo
770 m
Zanzibar
940 m
Bar Pasticceria del Mare
1,0 Km
La Perla
1,0 Km
Ristoranti Ristoranti
Satyricon
130 m
La Ciociara
440 m
Rstorante l'Ancora
450 m
Castello Miramare
470 m
Ristoranti
480 m
Mostra tutto

Caratteristiche

Rif.:
61134432
Piano:
Terra di 4 con ascensore
Totale piani:
4
Terrazzi:
1
Camere da letto:
2
Arredamento:
Assente
Mostra tutto
Prezzo Prezzo
€ 168.000
Rata mutuo Rata mutuo
€ 792 / mese
Spese annue Spese annue
€ 480
Proponi il tuo prezzoProponi il tuo prezzo

Classe Energetica

E
E
E
E
E
E
E
E
E
EP globale non rinnovabile:
180.00 kW h/m² anno
EP globale rinnovabile:
180.00 kW h/m² anno
EP invernale del fabbricato:
EP estiva del fabbricato:
Anno di costruzione:
1975
Riscaldamento:
Autonomo
Tipo impianto:
A radiatori
Tipo alimentazione:
Metano

Prezzo ridotto di €1 (7%%)

Ti interessa visionare l'immobile?

Fissa un appuntamento  Fissa un appuntamento

Richiedi informazioni

Clicca su Leggi per aprire l'informativa
* Questi campi sono obbligatori

Calcola il tuo mutuo

Semplice e senza impegno
Anticipo

( % )
Mutuo

( % )

pochi semplici passi

inserisci i tuoi dati
Questionario completato
Grazie per aver richiesto un appuntamento senza impegno con un nostro Consulente del Credito e Assicurativo.

Hai inserito correttamente tutti i dati necessari e a breve riceverai una e-mail con un link da convalidare per inviare i tuoi dati.
Affiliato
Aurea Formia Srl
Via XXIV Maggio, 26 04023 Formia (LT)

Il nostro staff


  • Ludovica Capodiferro
    Coordinatrice

  • Daniele Maneggio
    Responsabile

  • Elisabetta Marconi
    Coordinatrice

  • Mario Mezzanino
    Responsabile

  • Umberto Aprea
    Collaboratore

  • Giacomo Evangelista
    Collaboratore

  • Antonio Rotondo
    Affiliato
Via XXIV Maggio, 26 04023 Formia (LT)
Zona: Formia
Mostra su mappa
Orari: Orari: lunedì - venerdì 9:00/13:00 - 15:00/19:30; sabato 9:00/17:00; domenica su appuntamento 9:30/13:00
Affiliato
Aurea Formia Srl
Via XXIV Maggio, 26 04023 Formia (LT)

2025 Tecnocasa Franchising S.p.A. - P. IVA 08365160152 - Via Monte Bianco 60/A 20089 Rozzano (MI). Ogni agenzia ha un proprio titolare ed è autonoma. Privacy policy | Policy utilizzo | Cookie policy