Bilocale in vendita

Formia, Via Gradoni Del Duomo - Formia Centro
€ 138.000
2 locali 2 locali
72 Mq 72 Mq
1 bagno 1 bagno

Bilocale in vendita

Formia, Via Gradoni Del Duomo - Formia Centro

Descrizione annuncio

Formia – Via Gradoni Del Duomo
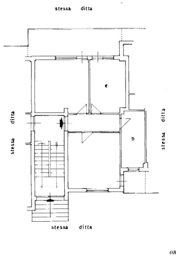
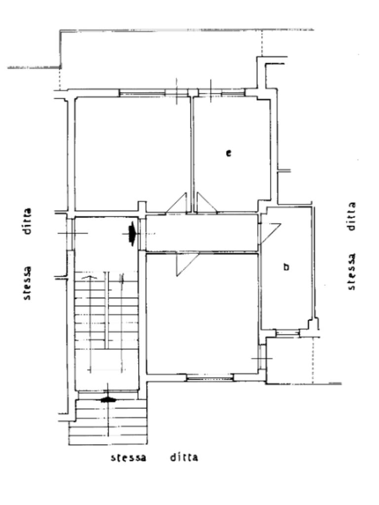
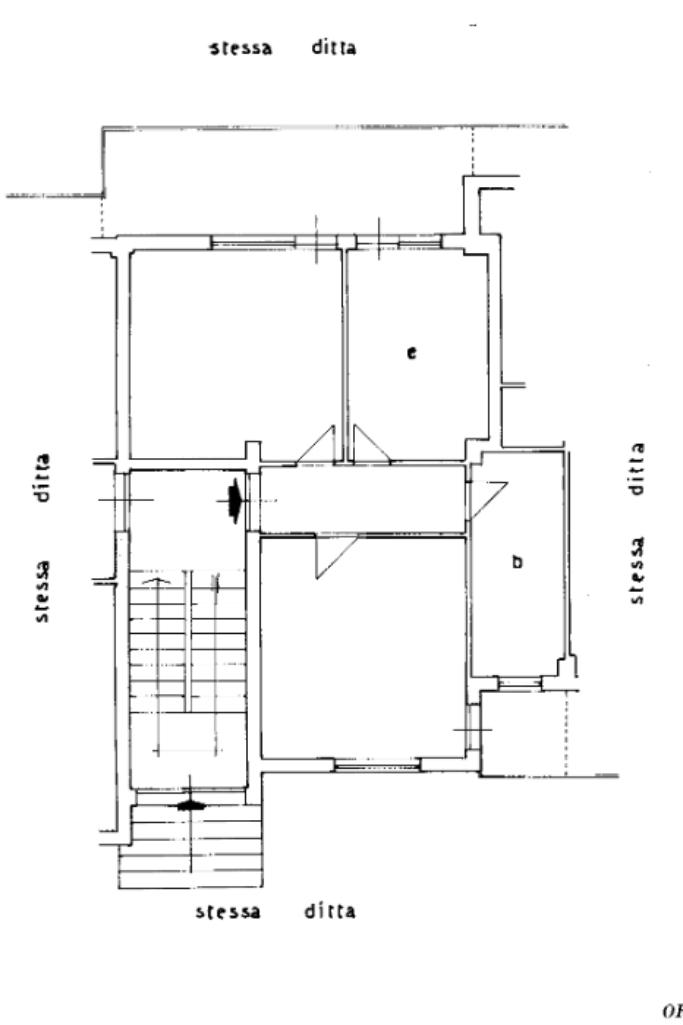
Appartamento con balconata — in posizione centrale e servita

A Formia, in Via Gradoni Del Duomo, in una zona comoda e ben servita, a pochi passi dal centro, dalla stazione ferroviaria e dal quartiere di Castellone, proponiamo in vendita un appartamento posto al primo piano.

L’ingresso conduce a un corridoio luminoso che distribuisce gli ambienti in modo ordinato. La casa dispone di una cucina abitabile, una camera da letto matrimoniale con balcone e un ulteriore ambiente versatile, utilizzabile secondo le proprie esigenze. Completa la proprietà un bagno finestrato con vasca.

Sia la cucina che una delle camere hanno accesso diretto a un’ampia balconata, uno spazio esterno ben esposto, ideale per la quotidianità e per garantire una buona luminosità agli ambienti.

La posizione rappresenta uno dei punti di forza: centrale, ben collegata e vicina a tutti i principali servizi, rendendo l’immobile pratico sia per vivere tutto l’anno sia per utilizzi stagionali.

Attualmente locato con regolare contratto in scadenza nel 31/08/2027, si presenta come una soluzione interessante per investimento, casa vacanza o futura abitazione principale.

Per maggiori informazioni o per organizzare una visita, contattaci.

Mostra tutto

Nelle vicinanze

Trasporto pubblico Trasporto pubblico
Formia-Gaeta
Formia-Gaeta
640 m
Trasporto pubblico
1,1 Km
Formia
930 m
Ricariche auto elettriche Ricariche auto elettriche
Molo Amerigo Vespucci
710 m
Largo Paone
910 m
Formia De Gasperi | EnelX
2,4 Km
Scuole Scuole
Istituto Magistrale
170 m
Scuole
530 m
Scuola media statale vitruvio pollione
1,2 Km
Farmacia Farmacia
Farmacia
750 m
Farmacia S. Anna
950 m
Ospedali Ospedali
Casa del Sole
950 m
Pronto Soccorso Ospedale Dono Svizzero
1,6 Km
Dono Svizzero
1,7 Km
Supermercati Supermercati
Conad
300 m
Supermercati
1,1 Km
Negozi Negozi
Negozi
1,1 Km
Merolla Calzature
2,9 Km
Bar Bar
Bar
490 m
Lo Smeraldo
800 m
Zanzibar
920 m
Bar Pasticceria del Mare
990 m
La Perla
1,0 Km
Ristoranti Ristoranti
Satyricon
100 m
La Ciociara
420 m
Castello Miramare
450 m
Ristoranti
460 m
Rstorante l'Ancora
470 m
Mostra tutto

Caratteristiche

Rif.:
61194731
Piano:
1 di 4 (Piano basso)
Balconi:
2
Camere da letto:
1
Arredamento:
Assente
Condizionamento:
Predisposizione impianto
Mostra tutto
Prezzo Prezzo
€ 138.000
Rata mutuo Rata mutuo
€ 651 / mese
Spese annue Spese annue
€ 180
Proponi il tuo prezzoProponi il tuo prezzo

Classe Energetica

E
E
E
E
E
E
E
E
E
EP globale non rinnovabile:
129.00 kW h/m² anno
EP globale rinnovabile:
56.80 kW h/m² anno
EP invernale del fabbricato:
EP estiva del fabbricato:
Anno di costruzione:
1970
Riscaldamento:
Autonomo
Tipo impianto:
A radiatori
Tipo alimentazione:
Metano

Ti interessa visionare l'immobile?

Fissa un appuntamento  Fissa un appuntamento

Richiedi informazioni

Clicca su Leggi per aprire l'informativa
* Questi campi sono obbligatori

Calcola il tuo mutuo

Semplice e senza impegno
Anticipo

( % )
Mutuo

( % )

pochi semplici passi

inserisci i tuoi dati
Questionario completato
Grazie per aver richiesto un appuntamento senza impegno con un nostro Consulente del Credito e Assicurativo.

Hai inserito correttamente tutti i dati necessari e a breve riceverai una e-mail con un link da convalidare per inviare i tuoi dati.
Affiliato
Aurea Formia Srl
Via XXIV Maggio, 26 04023 Formia (LT)

Il nostro staff


  • Giulia D'Arco
    Coordinatrice

  • Daniele Maneggio
    Responsabile

  • Elisabetta Marconi
    Coordinatrice

  • Mario Mezzanino
    Responsabile

  • Umberto Aprea
    Collaboratore

  • Giacomo Evangelista
    Collaboratore

  • Antonio Rotondo
    Affiliato
Via XXIV Maggio, 26 04023 Formia (LT)
Zona: Formia
Mostra su mappa
Orari: Orari: lunedì - venerdì 9:00/13:00 - 15:00/19:30; sabato 9:00/17:00; domenica su appuntamento 9:30/13:00
Affiliato
Aurea Formia Srl
Via XXIV Maggio, 26 04023 Formia (LT)

2026 Tecnocasa Franchising S.p.A. - P. IVA 08365160152 - Via Monte Bianco 60/A 20089 Rozzano (MI). Ogni agenzia ha un proprio titolare ed è autonoma. Privacy policy | Policy utilizzo | Cookie policy