Casa indipendente in vendita

Formia, Via Gesso Paradiso - Rio Fresco - Ospedale
€ 265.000
Prezzo aggiornato
4 locali 4 locali
115 Mq 115 Mq
2 bagni 2 bagni

Casa indipendente in vendita

Formia, Via Gesso Paradiso - Rio Fresco - Ospedale

Descrizione annuncio

Per garantirti una visione completa di questo immobile, offriamo la possibilità di esplorarlo tramite un virtual tour, per permetterti di valutarlo comodamente da subito questa soluzione ovunque ti trovi!

Formia, Via Gesso Paradiso

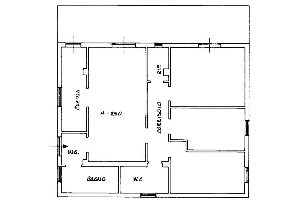
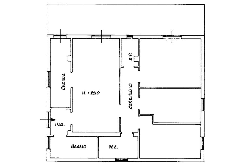
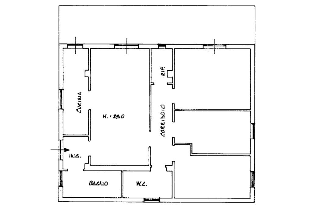
Proponiamo in vendita una casa indipendente disposta su un unico livello rialzato, caratterizzata da un’ottima distribuzione degli ambienti interni e da ampi spazi esterni.

L’immobile presenta un ingresso che conduce nella zona giorno composta da soggiorno, cucina abitabile e bagno. Un corridoio divide la zona giorno dalla zona notte, dove troviamo tre camere da letto, di cui una singola, una doppia e una matrimoniale, un secondo bagno e un comodo ripostiglio.

Dal soggiorno e dalla camera matrimoniale si accede al terrazzo a livello di circa 30 mq, ideale per trascorrere momenti di relax all’aperto.

Completa la proprietà una corte esterna cementata che circonda l’abitazione e un terreno di circa 4.100 mq, in parte adibito a spazio verde.

Non perdere l’occasione di scoprirlo da casa: contattaci per accedere al virtual tour e fissare un appuntamento!

Mostra tutto

Nelle vicinanze

Trasporto pubblico Trasporto pubblico
Formia-Gaeta
Formia-Gaeta
2,1 Km
Trasporto pubblico
1,9 Km
Formia
2,2 Km
Ricariche auto elettriche Ricariche auto elettriche
Formia De Gasperi | EnelX
1,2 Km
Largo Paone
2,0 Km
Molo Amerigo Vespucci
2,6 Km
Scuole Scuole
Scuola media statale vitruvio pollione
1,7 Km
Scuole
2,3 Km
Istituto Magistrale
2,7 Km
Farmacia Farmacia
Farmacia S. Anna
2,0 Km
Farmacia
2,2 Km
Ospedali Ospedali
Dono Svizzero
1,5 Km
Pronto Soccorso Ospedale Dono Svizzero
1,5 Km
Supermercati Supermercati
Supermercati
1,9 Km
IN's
2,3 Km
Conad
2,7 Km
Negozi Negozi
Negozi
1,9 Km
Merolla Calzature
2,0 Km
Vittoria
2,1 Km
Panificio D'Urso
2,1 Km
Cristiano intimo
2,1 Km
Bar Bar
Green Cafe
1,8 Km
Pizzeria S. Giovanni
1,9 Km
Bar
1,9 Km
La Vinicola Vino
1,9 Km
La Perla
1,9 Km
Ristoranti Ristoranti
Taverna di Mola
1,7 Km
Pensione Campese
1,7 Km
Tosti Panini Gourmet
1,9 Km
Pizzeria San Giovanni
1,9 Km
Il Magazzino
1,9 Km
Mostra tutto

Caratteristiche

Rif.:
61099409
Piano:
Terra con giardino di 1
Totale piani:
1
Posti auto:
2
Terrazzi:
1
Camere da letto:
3
Mostra tutto
Prezzo Prezzo
€ 265.000
Rata mutuo Rata mutuo
€ 1.250 / mese
Spese annue Spese annue
€ 0
Proponi il tuo prezzoProponi il tuo prezzo

Classe Energetica

G
G
G
G
G
G
G
G
G
EP globale non rinnovabile:
400.00 kW h/m² anno
EP globale rinnovabile:
0.00 kW h/m² anno
EP invernale del fabbricato:
EP estiva del fabbricato:
Anno di costruzione:
1995
Riscaldamento:
Autonomo
Tipo impianto:
A radiatori
Tipo alimentazione:
GPL

Prezzo ridotto di €1 (16%%)

Ti interessa visionare l'immobile?

Fissa un appuntamento  Fissa un appuntamento

Richiedi informazioni

Clicca su Leggi per aprire l'informativa
* Questi campi sono obbligatori

Calcola il tuo mutuo

Semplice e senza impegno
Anticipo

( % )
Mutuo

( % )

pochi semplici passi

inserisci i tuoi dati
Questionario completato
Grazie per aver richiesto un appuntamento senza impegno con un nostro Consulente del Credito e Assicurativo.

Hai inserito correttamente tutti i dati necessari e a breve riceverai una e-mail con un link da convalidare per inviare i tuoi dati.
Affiliato
Aurea Formia Srl
Via XXIV Maggio, 26 04023 Formia (LT)

Il nostro staff


  • Ludovica Capodiferro
    Coordinatrice

  • Daniele Maneggio
    Responsabile

  • Elisabetta Marconi
    Coordinatrice

  • Mario Mezzanino
    Responsabile

  • Umberto Aprea
    Collaboratore

  • Giacomo Evangelista
    Collaboratore

  • Antonio Rotondo
    Affiliato
Via XXIV Maggio, 26 04023 Formia (LT)
Zona: Formia
Mostra su mappa
Orari: Orari: lunedì - venerdì 9:00/13:00 - 15:00/19:30; sabato 9:00/17:00; domenica su appuntamento 9:30/13:00
Affiliato
Aurea Formia Srl
Via XXIV Maggio, 26 04023 Formia (LT)

2025 Tecnocasa Franchising S.p.A. - P. IVA 08365160152 - Via Monte Bianco 60/A 20089 Rozzano (MI). Ogni agenzia ha un proprio titolare ed è autonoma. Privacy policy | Policy utilizzo | Cookie policy