Villa singola in vendita

Formia, via Gesso Paradiso - Formia Centro
€ 690.000
8 locali 8 locali
348 Mq 348 Mq
2 bagni 2 bagni

Villa singola in vendita

Formia, via Gesso Paradiso - Formia Centro

Descrizione annuncio

Villa indipendente con vista mare – Via Gelso Paradiso, Formia

In una delle zone più riservate e panoramiche di Formia, immersa nel verde e affacciata sul mare, sorge questa villa indipendente che unisce architettura, panorama e privacy in perfetto equilibrio.

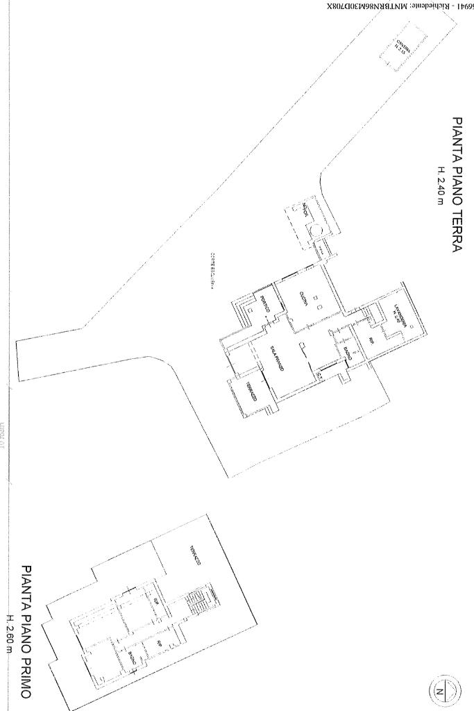
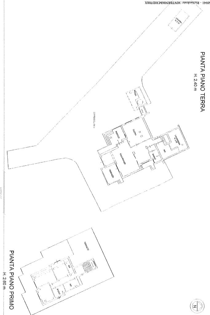
Ristrutturata con cura dei dettagli, si sviluppa su due livelli per circa 228 mq calpestabili, circondata da 2.500 mq di giardino privato che regalano silenzio, natura e libertà. Ogni ambiente è progettato per accogliere la luce naturale e valorizzare la vista sul Golfo di Gaeta.

Al piano terra, la grande zona giorno luminosa con ampie vetrate dialoga con l’esterno, mentre la cucina abitabile rappresenta il cuore conviviale della casa. Completano il piano un bagno finestrato e un locale lavanderia, pratici e funzionali per la vita quotidiana. La villa dispone di un ingresso principale che conduce direttamente al soggiorno e di un secondo ingresso dal garage, che permette di accedere comodamente all’interno dell’abitazione, garantendo privacy e praticità.

Al piano superiore, la zona notte ospita tre camere da letto, due matrimoniali e una singola, un bagno finestrato e un’ampia cabina armadio. Il terrazzo panoramico di 174 mq abbraccia l’intera proprietà, uno spazio sospeso tra cielo, mare e natura, ideale per momenti di relax e condivisione.

All’esterno, il giardino ospita un forno a legna e un locale deposito, perfetti per vivere appieno gli spazi aperti e godere dell’atmosfera naturale che circonda la villa. È inoltre presente un’area ideale per l’installazione di una piscina con vista mare, che aggiungerebbe ulteriore valore e charme alla proprietà.

La villa dispone infine di un garage di 51 mq e di una cantina, mentre la stufa a pellet e i pannelli solari fungono da fonte principale per il riscaldamento e la produzione di acqua calda all’intera abitazione, garantendo comfort ed efficienza

Una dimora immersa nel verde, dove riservatezza e qualità della vita diventano quotidianità, perfetta per chi cerca un luogo esclusivo, lontano dal rumore ma vicino a tutto ciò che conta, la luce, il mare e il piacere del proprio spazio.

Attualmente locata con regolare contratto con scadenza 30/10/2026

Mostra tutto

Nelle vicinanze

Trasporto pubblico Trasporto pubblico
Formia-Gaeta
Formia-Gaeta
2,2 Km
Trasporto pubblico
1,9 Km
Formia
2,3 Km
Ricariche auto elettriche Ricariche auto elettriche
Formia De Gasperi | EnelX
1,0 Km
Largo Paone
2,1 Km
Molo Amerigo Vespucci
2,7 Km
Scuole Scuole
Scuola media statale vitruvio pollione
1,8 Km
Scuole
2,4 Km
Istituto Magistrale
2,9 Km
Farmacia Farmacia
Farmacia S. Anna
2,1 Km
Farmacia
2,3 Km
Ospedali Ospedali
Dono Svizzero
1,5 Km
Pronto Soccorso Ospedale Dono Svizzero
1,5 Km
Supermercati Supermercati
Supermercati
1,6 Km
IN's
2,0 Km
Conad
2,9 Km
Negozi Negozi
Merolla Calzature
1,7 Km
Negozi
1,7 Km
Vittoria
1,8 Km
Panificio D'Urso
1,8 Km
Cristiano intimo
1,9 Km
Bar Bar
La Vinicola Vino
1,7 Km
Green Cafe
1,9 Km
Pizzeria S. Giovanni
2,0 Km
Bar Old Greko
2,0 Km
Bar
2,0 Km
Ristoranti Ristoranti
Pensione Campese
1,4 Km
Il Tartufo
1,8 Km
Taverna di Mola
1,8 Km
Tosti Panini Gourmet
1,9 Km
Il Magazzino
1,9 Km
Mostra tutto

Caratteristiche

Rif.:
61133975
Piano:
Su più livelli di 2
Totale piani:
2
Box:
1
Posti auto:
5
Balconi:
2
Mostra tutto
Prezzo Prezzo
€ 690.000
Rata mutuo Rata mutuo
€ 3.254 / mese
Spese annue Spese annue
€ 0
Proponi il tuo prezzoProponi il tuo prezzo

Classe Energetica

F
F
F
F
F
F
F
F
F
EP globale non rinnovabile:
115.17 kW h/m² anno
EP globale rinnovabile:
4.35 kW h/m² anno
EP invernale del fabbricato:
EP estiva del fabbricato:
Anno di costruzione:
1980
Riscaldamento:
Autonomo
Tipo impianto:
A radiatori
Tipo alimentazione:
Pannelli

Ti interessa visionare l'immobile?

Fissa un appuntamento  Fissa un appuntamento

Richiedi informazioni

Clicca su Leggi per aprire l'informativa
* Questi campi sono obbligatori

Calcola il tuo mutuo

Semplice e senza impegno
Anticipo

( % )
Mutuo

( % )

pochi semplici passi

inserisci i tuoi dati
Questionario completato
Grazie per aver richiesto un appuntamento senza impegno con un nostro Consulente del Credito e Assicurativo.

Hai inserito correttamente tutti i dati necessari e a breve riceverai una e-mail con un link da convalidare per inviare i tuoi dati.
Affiliato
Aurea Formia Srl
Via XXIV Maggio, 26 04023 Formia (LT)

Il nostro staff


  • Ludovica Capodiferro
    Coordinatrice

  • Daniele Maneggio
    Responsabile

  • Elisabetta Marconi
    Coordinatrice

  • Mario Mezzanino
    Responsabile

  • Umberto Aprea
    Collaboratore

  • Giacomo Evangelista
    Collaboratore

  • Antonio Rotondo
    Affiliato
Via XXIV Maggio, 26 04023 Formia (LT)
Zona: Formia
Mostra su mappa
Orari: Orari: lunedì - venerdì 9:00/13:00 - 15:00/19:30; sabato 9:00/17:00; domenica su appuntamento 9:30/13:00
Affiliato
Aurea Formia Srl
Via XXIV Maggio, 26 04023 Formia (LT)

2025 Tecnocasa Franchising S.p.A. - P. IVA 08365160152 - Via Monte Bianco 60/A 20089 Rozzano (MI). Ogni agenzia ha un proprio titolare ed è autonoma. Privacy policy | Policy utilizzo | Cookie policy